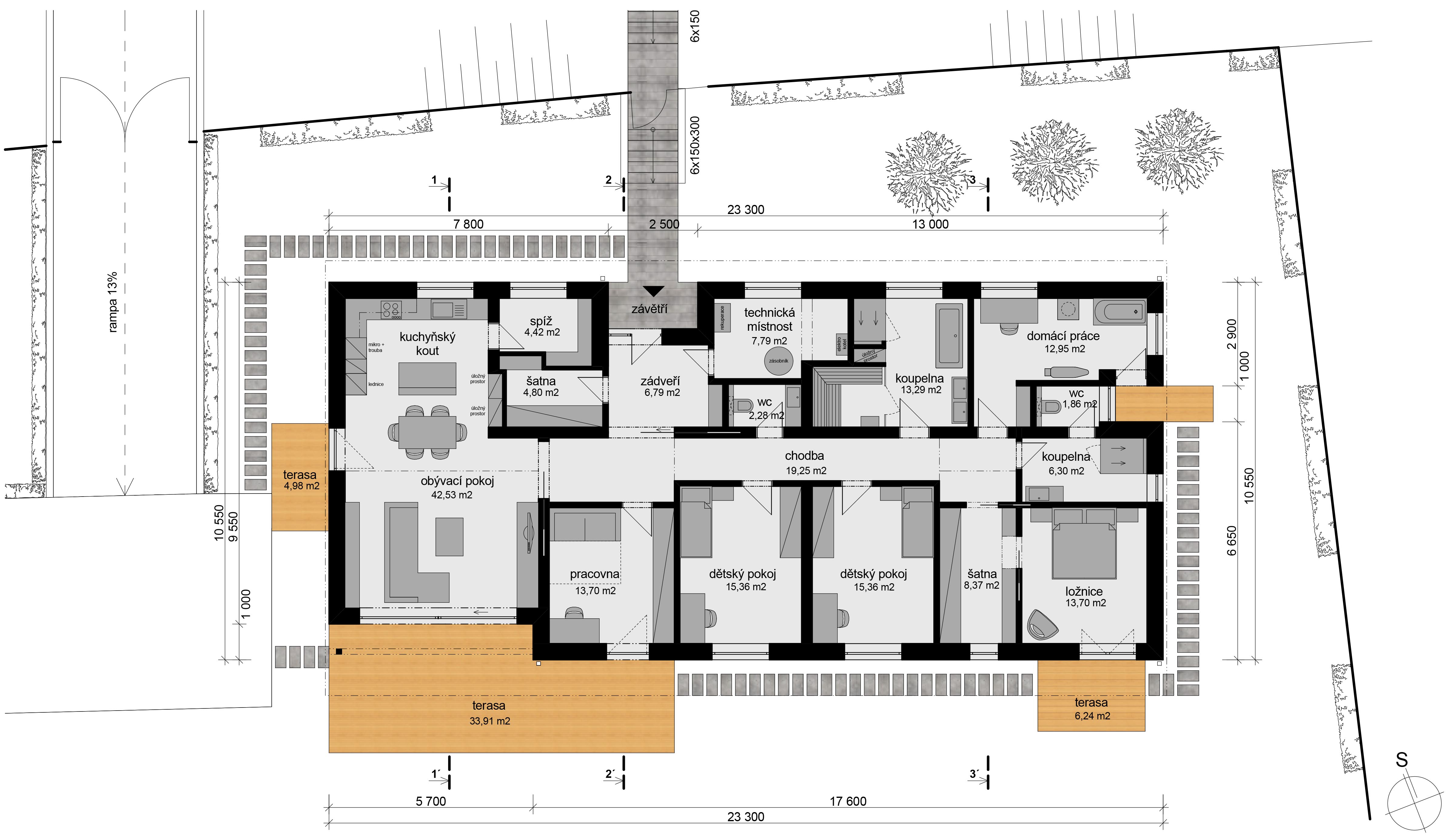
Pasivní rodinný dům