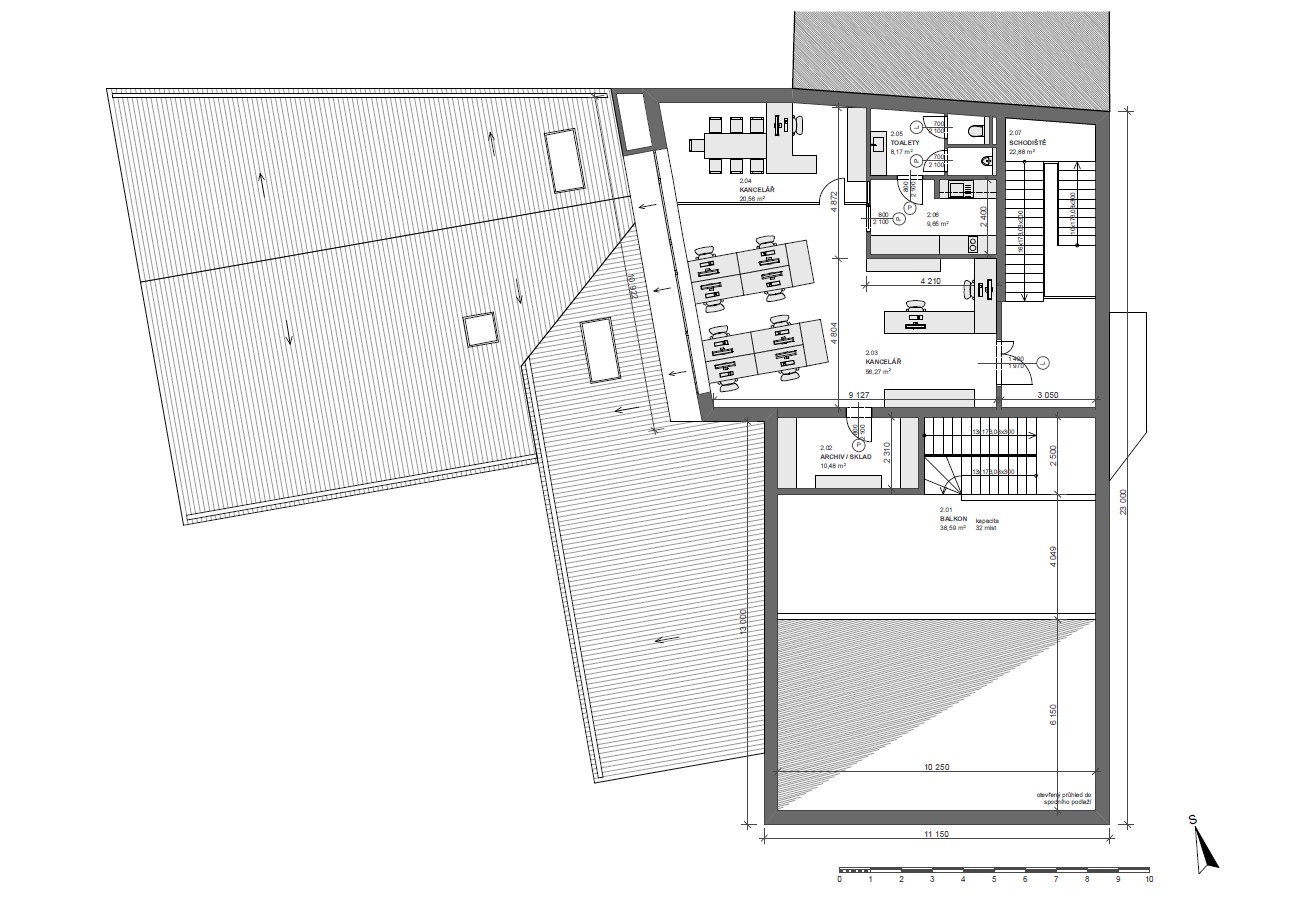
Kulturní dům Ktiš