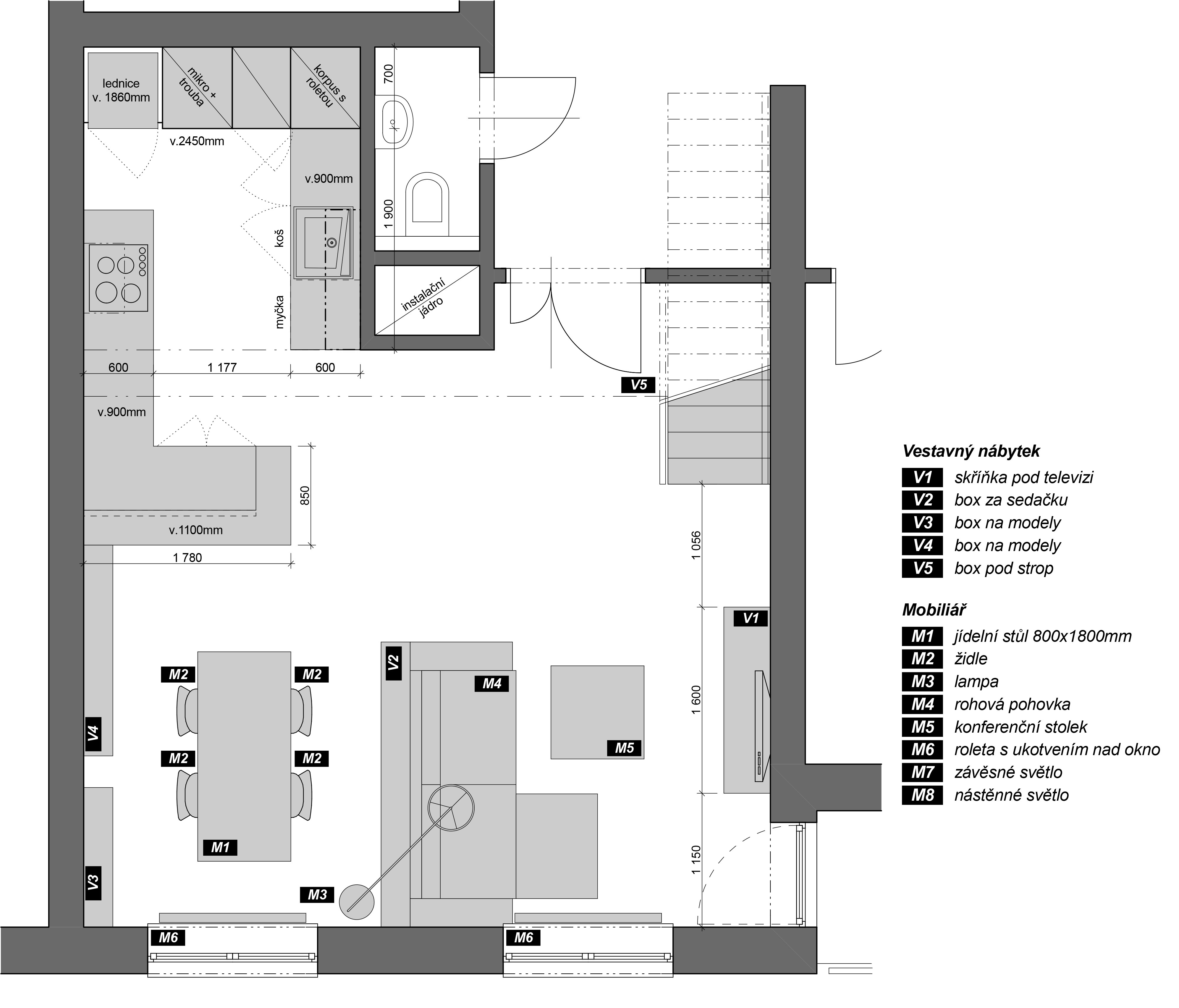
Ob. pokoj s kuch. koutem