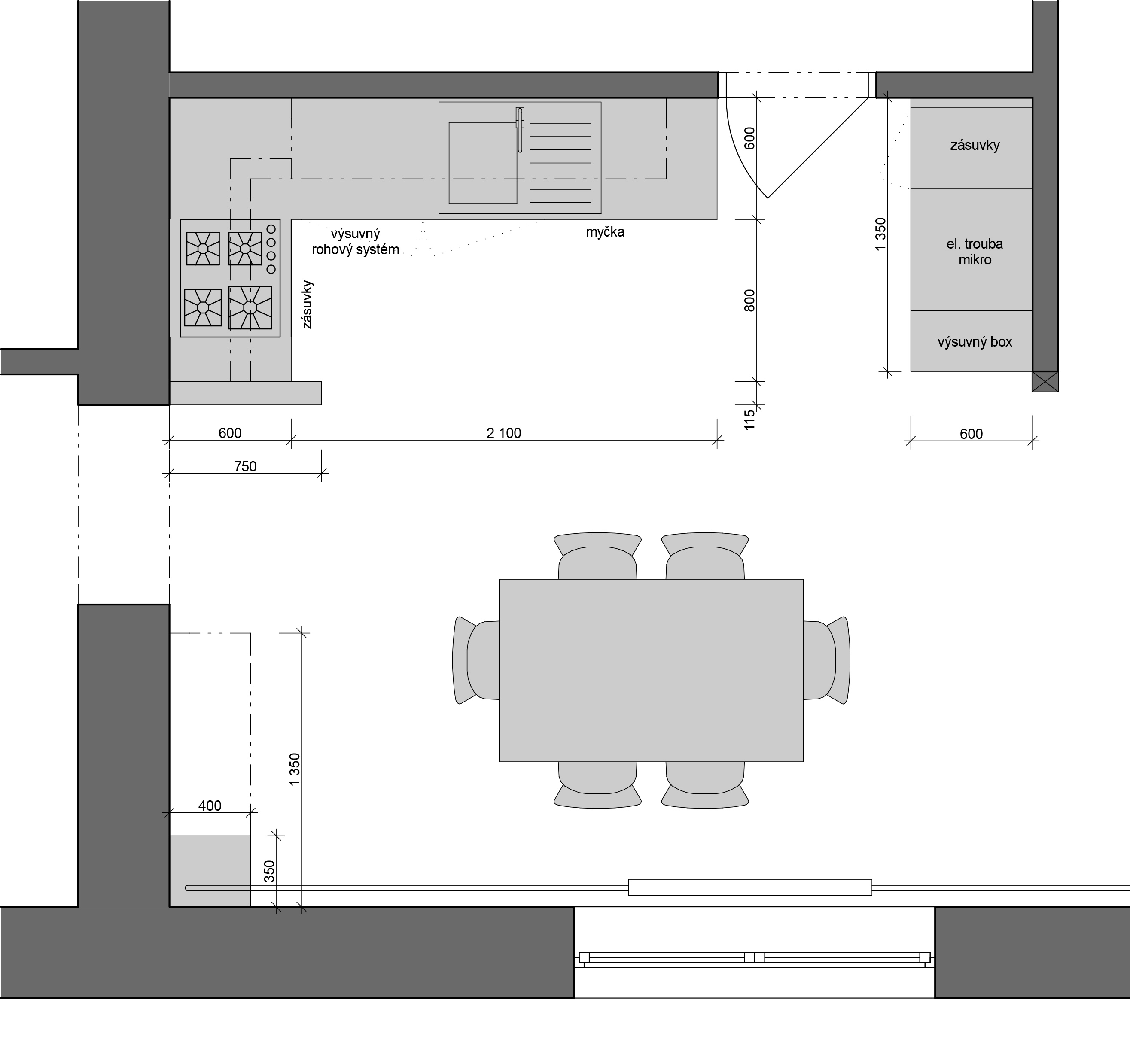
Kuchyně s jídelnou v rodinném domě