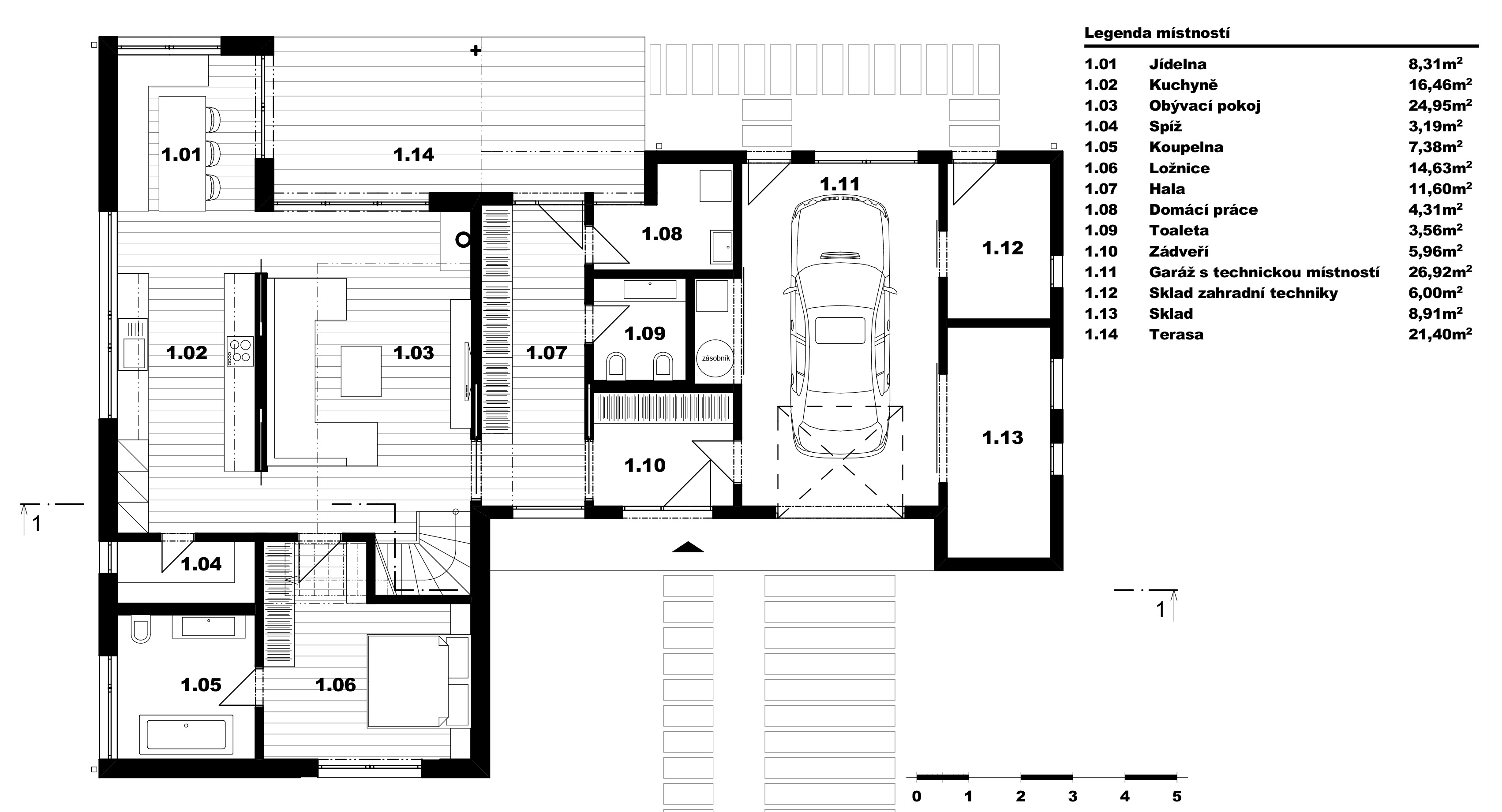
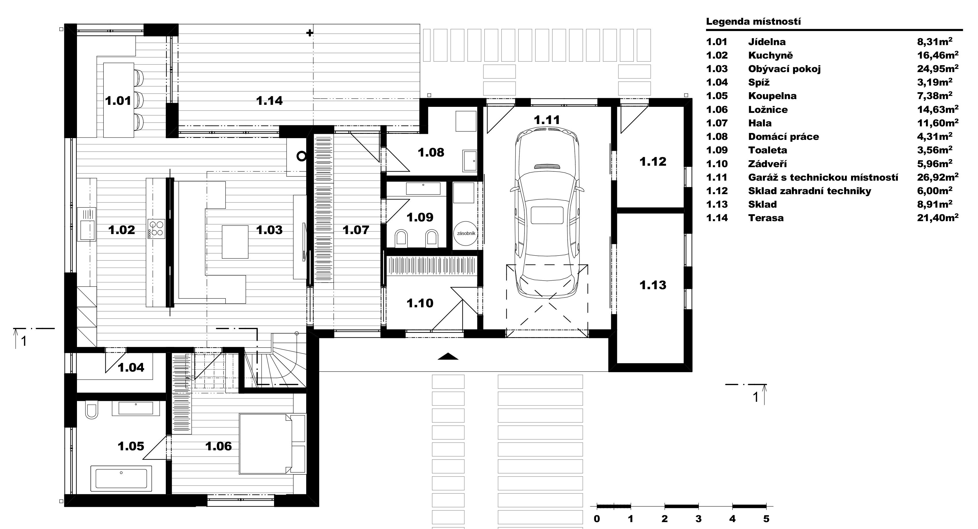
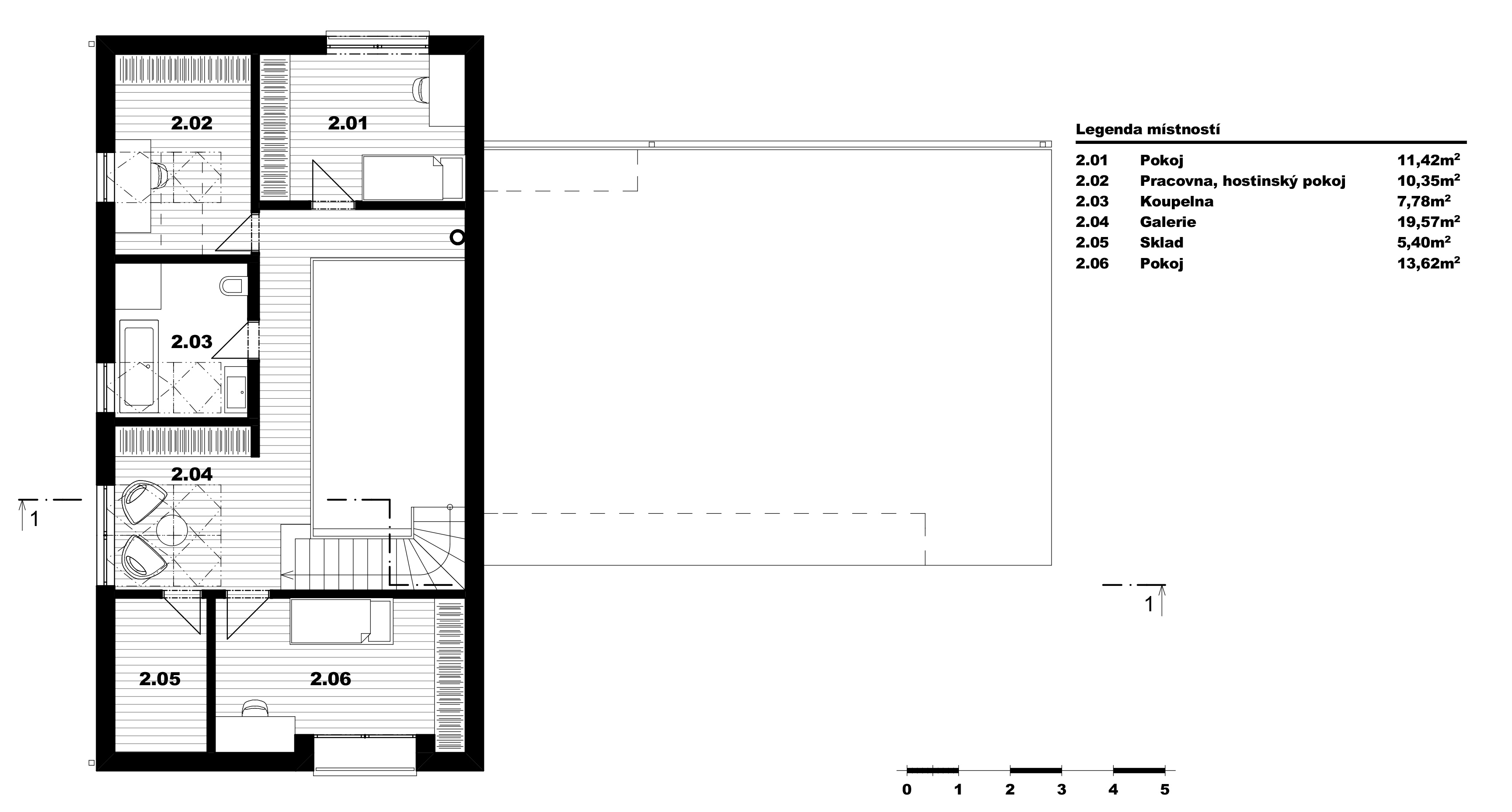
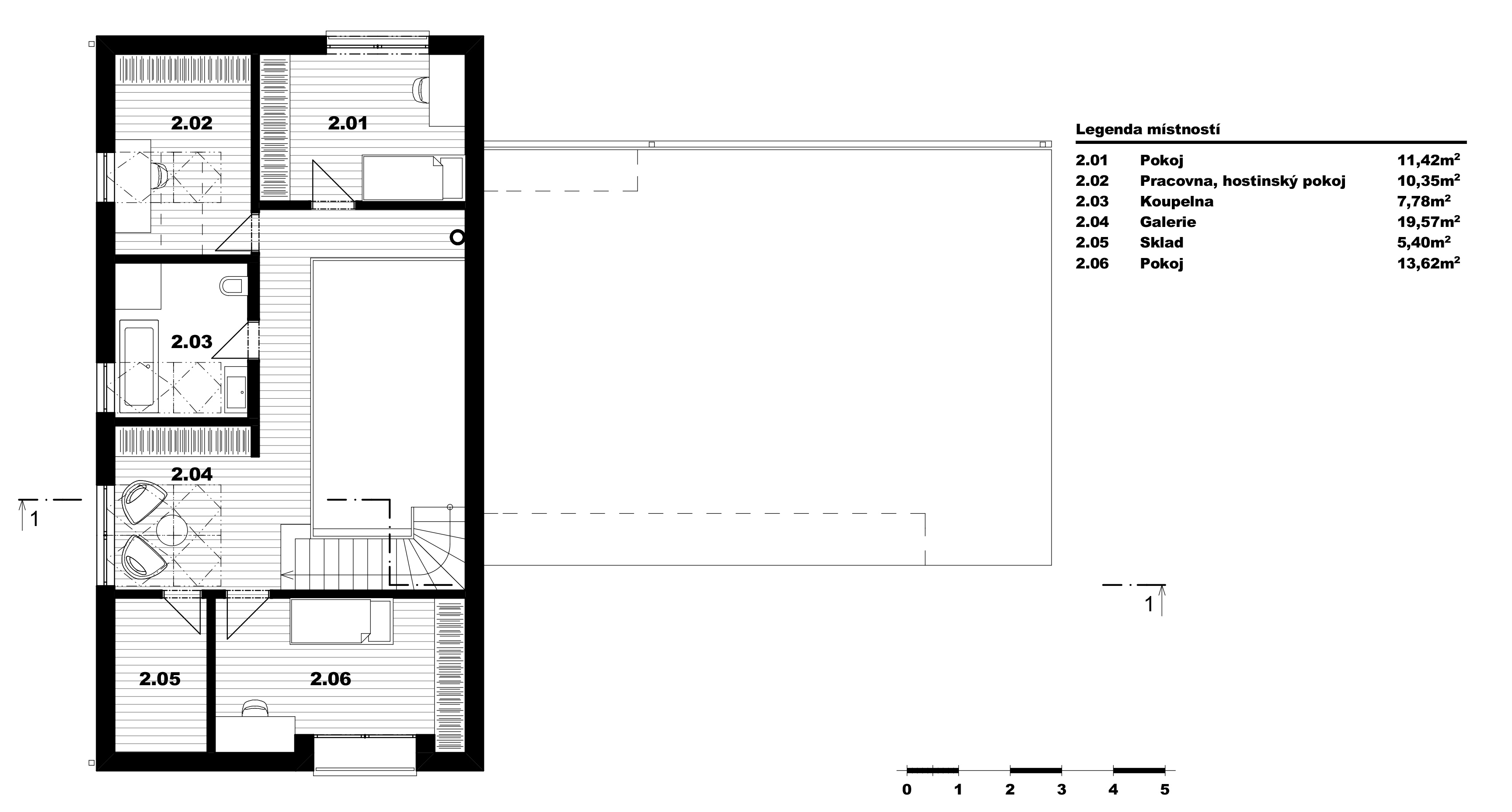
Rodinný dům Haas-fertigbau